【閥門用途】
Q41F46襯氟球閥內腔及球體均采用高壓注塑工藝襯有耐腐蝕、耐老化的聚全氟乙丙稀(F46),故具有可靠的耐腐蝕性和密封性。廣泛用于化工、石油、冶金、醫藥等工業部門,實現對生產過程中酸、堿等強腐蝕介質的調節或切斷,在水處理過程控制中使用效果明顯。
【閥門特點】
1、采用FEP襯里層的襯氟球閥,具有的化學穩定性,可以適用除“熔融堿金屬和元素氟”,以外其它任何強腐蝕性質。
2、襯氟球閥采用全通徑、浮動球結構,閥門可在整個壓力范圍內進行無泄漏關閉,更便于管路系統的通球掃線和管路維護。
3、啟閉件球件與閥桿鑄(鍛)為一體,杜絕了由于壓力變化引起閥桿沖出承壓件內的可能性,從根本上保證了工程中的使用安全性。
4、襯氟球閥結構緊湊合理,閥體內腔空間較小,減小了介質滯留,另外,特殊的模壓工藝,使密封面致密度良好,加之人字環形PTFE填料組合,使閥門達到零泄漏。
5、兩片式、三片式結構可適應各種不同要求的管路系統和工況條件,其中三片式球閥允許主閥體與兩側閥體分離,可實現在線快速更換、維修。
【結構簡圖】

【執行標準】
設計標準:GB12237
結構長度:GB12221
法蘭標準:JB/T79-94 GB9113.1-26
檢驗試驗:JB/T9092-99
【性能參數】
| 襯氟球閥型號 | Q41F46-10 | Q41F46-16 | Q41F46-10C | Q41F46-16C | |
| 工作壓力(Mpa) | 1.0 | 1.6 | 1.0 | 1.6 | |
| 適用溫度(℃) | -10~150 | -20~150 | |||
| 適用介質 | 腐蝕性介質 | ||||
| 材料 | 閥體 | 鑄鐵內襯聚四氟乙烯 | 鑄鐵內襯聚四氟乙烯 | ||
| 球體 | 鑄鋼外包聚四氟乙烯 | ||||
| 密封圈 | 增強聚四氟乙烯 | 聚四氟乙烯 | |||
| 填料 | 聚四氟乙烯 | ||||
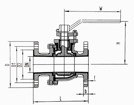
【外形和連接尺寸】
| 公稱通徑 | PN1.6(Mpa)襯氟球閥外形尺寸和連接尺寸(mm) | 參考值 | 重量 | |||||||
| DN | L | D | D1 | D2 | f | b | Z-Φd | H1 | D0 | kg |
| 15 | 130 | 95 | 65 | 45 | 3 | 14 | 4-Φ14 | 95 | 140 | 4 |
| 20 | 140 | 105 | 75 | 55 | 3 | 14 | 4-Φ14 | 98 | 150 | 4.5 |
| 25 | 150 | 115 | 85 | 65 | 3 | 16 | 4-Φ14 | 113 | 150 | 5.5 |
| 32 | 165 | 135 | 100 | 78 | 3 | 18 | 4-Φ18 | 130 | 180 | 7 |
| 40 | 180 | 145 | 110 | 85 | 3 | 18 | 4-Φ18 | 135 | 200 | 9 |
| 50 | 200 | 160 | 125 | 100 | 3.5 | 20 | 4-Φ18 | 140 | 220 | 15 |
| 65 | 220 | 180 | 145 | 120 | 3.5 | 20 | 4-Φ18 | 145 | 280 | 17 |
| 80 | 250 | 195 | 160 | 135 | 4 | 22 | 8-Φ18 | 205 | 320 | 30 |
| 100 | 280 | 215 | 180 | 155 | 4 | 24 | 8-Φ18 | 230 | 380 | 40 |
| 125 | 320 | 245 | 210 | 185 | 4 | 26 | 8-Φ18 | 252 | 500 | 60 |
| 150 | 360 | 280 | 240 | 210 | 4 | 28 | 8-Φ23 | 283 | 600 | 75 |
| 200 | 400 | 335 | 295 | 265 | 5 | 30 | 8-Φ23 | 325 | 750 | 130 |
| 250 | 450 | 405 | 335 | 320 | 5 | 34 | 12-Φ26 | 370 | 900 | 210 |
聲明:本文中所有文字、數據、圖片均只適用于參考,性能參數、結構尺寸參數、價格等詳情,請聯系我們,電話:021-59170722!






<
<
<
<
<
<
<
<
<
<
